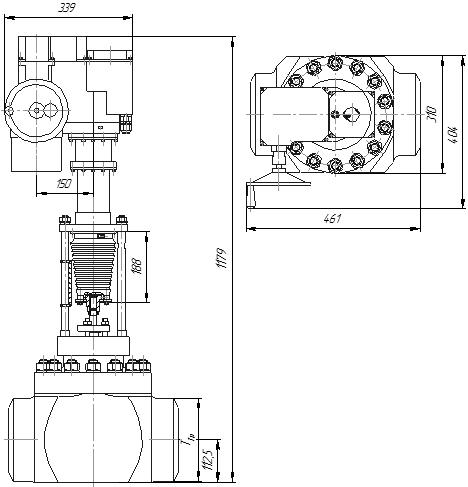
Клапан регулирующий ЭИ 95.100КЭ-РОУ
|
Проход условный (размер номинальный) DN |
100 |
|
|
Рабочая среда |
пар |
|
|
Рабочее давление Рр, МПа |
13,7 |
|
|
Рабочая температура Тр, °С |
560 |
|
|
Перепад давления (max), МПа |
полный |
|
|
Максимальное тяговое усилие на штоке, Н |
20000 |
|
|
Привод |
МЭП 25000/80-80У-14 |
|
|
Мощность, КВт |
0,74 |
|
|
Материалы: |
|
|
|
– корпус |
сталь 12Х1МФ, 15Х1МФ |
|
|
– клетка, плунжер, шток |
высоколегированные марки сталей и сплавов с применением термообработки, карбонитрацией |
|
|
Уплотнения |
ТРГ |
|
|
Исполнение корпусов |
проходное |
|
|
Ход поршня, мм |
45 |
|
|
Время полного открытия/закрытия, сек |
45 |
|
|
Максимальная площадь проходного сечения Fmax, см2 *** |
38 |
|
|
Максимальная пропускная способность Kv100, , т/ч *** |
100 | |
|
Масса, кг |
210 | |
*** - согласно ТЗ Заказчика
|
Назначение: регулирование параметров рабочей среды в теплоэнергетических установках. Применение: регулирующие клапаны в составе РОУ, РУ энергоблоков ТЭС и др. тепловых установок. |
Особенности конструкции: клапан имеет сменные элементы проточной части, затвор клеточного типа с разгруженным плунжером (золотником). Встроенный электропривод типа МЭП. Ремонт производится без демонтажа клапана из трубопровода путем замены затвора («клетка – плунжер», уплотнительные элементы). Расчётный срок эксплуатации – 200 тыс. часов.


