Клапаны регулирующие серии ЭИ 97.(250/150, 250/125)КЭ
|
Проход условный (размер номинальный) DN |
250/150 |
250/125 | |
|
Рабочая среда |
вода |
||
|
Рабочее давление Рр, МПа |
4,0 |
||
|
Рабочая температура Тр, °С |
350 |
||
|
Перепад давления (max), МПа |
полный |
||
|
Максимальное тяговое усилие на штоке, Н |
16 000 | ||
|
Привод |
МЭП 25000/80-80У-14 |
||
| Мощность, КВт | 0,74 | ||
|
Материалы: |
|
||
|
– корпус |
сталь 20, ХМФ |
||
|
– клетка, плунжер, шток |
высоколегированные марки сталей и сплавов с применением термообработки, карбонитрацией |
||
|
Уплотнения |
ТРГ |
||
|
Исполнение корпусов |
- трехпоточное |
||
|
Ход поршня, мм |
80 |
||
|
Время полного открытия/закрытия, сек |
80 |
||
|
Максимальная площадь проходного сечения Fmax, см2 *** |
Fmax = 110/15 |
||
|
Максимальная пропускная способность Kv100, , т/ч *** |
335/46 | ||
|
Масса, кг |
254 |
250 |
|
*** - согласно ТЗ Заказчика
Назначение: регулирование уровня в конденсаторах энергоблоков ТЭС, ТЭЦ.
Особенности конструкции: трехпоточный клапан клеткового типа, элементы проточной части – сменные, защитную сетку на клетке от попадания мех. частиц (грата). Элементы проточной части имеют поверхностное упрочнение (карбонитрацию). Встроенный электропривод типа МЭП. Ремонт производится без демонтажа клапана из трубопровода путем замены затвора («клетка – плунжер», уплотнительные элементы). Расчётный срок эксплуатации – 200 тыс. часов.
Клапаны эксплуатируются на энергоблоках следующих ТЭС: Кураховской..
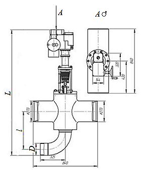
|
DN |
D |
L |
l |
|
250/150 |
159 |
1640 |
495 |
|
250/125 |
133 |
1592 |
460 |

